Powercat
chevron
double-chevron
chat-purple
home
computer window with a question mark
close
facebook
linkedin
menu
search
twitter
youtube
apply-purple
apply-white
chat-white
request-purple
request-white
Jump to main content
Jump to footer
Kansas State University
Canvas
OrgCentral
Navigate
KSIS
Time & Leave
HRIS
Webmail
Sign in
Browse A-Z
Department of Architecture
Search
Search
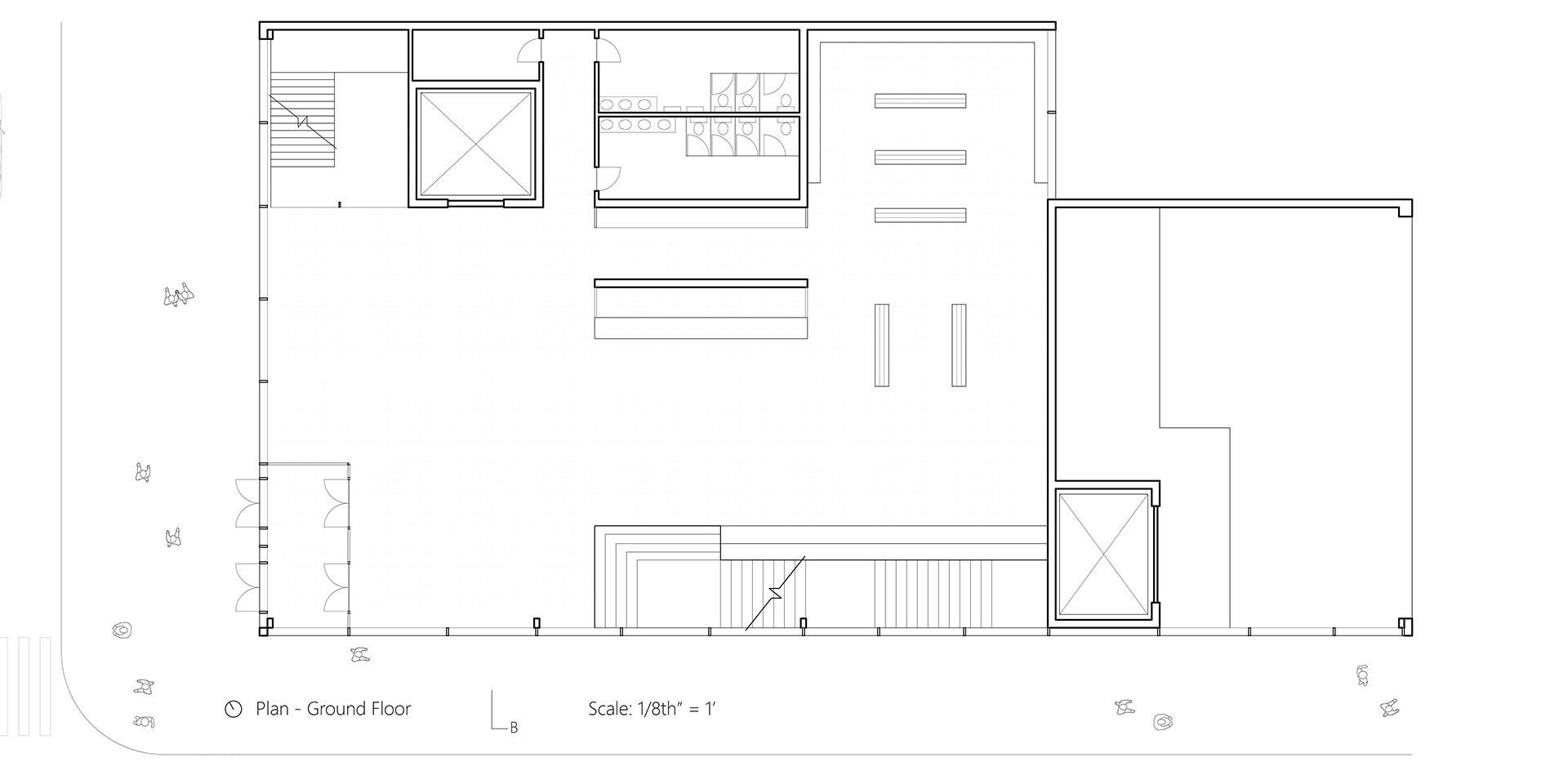
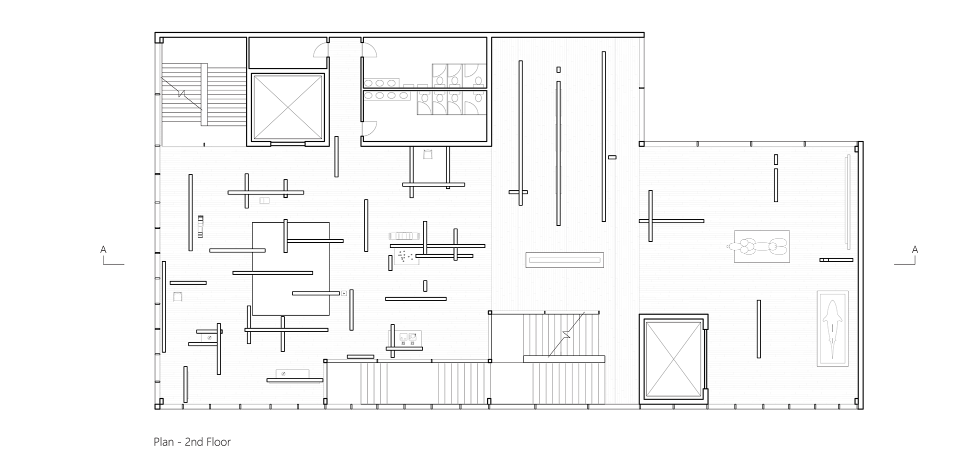
Noho District Exhibition Space
Hudson Parris
Architectural Design Studio IV with Assistant Professor Grant Alford
Updated: 12/16/25