Powercat
chevron
double-chevron
chat-purple
home
computer window with a question mark
close
facebook
linkedin
menu
search
twitter
youtube
apply-purple
apply-white
chat-white
request-purple
request-white
Jump to main content
Jump to footer
Kansas State University
Canvas
OrgCentral
Navigate
KSIS
Time & Leave
HRIS
Webmail
Sign in
Browse A-Z
Department of Architecture
Search
Search
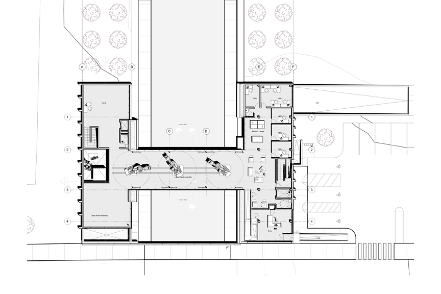
Nexus: Applied Research Lab
Donovan Douglas
Architectural Design Studio V with Associate Professor Genevieve Baudoin
Fall 2020
Updated: 9/19/25