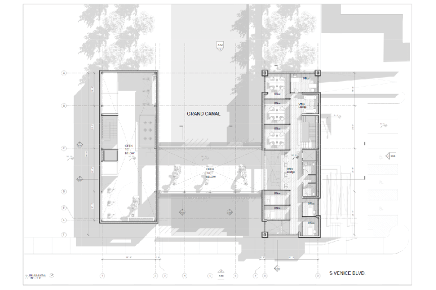
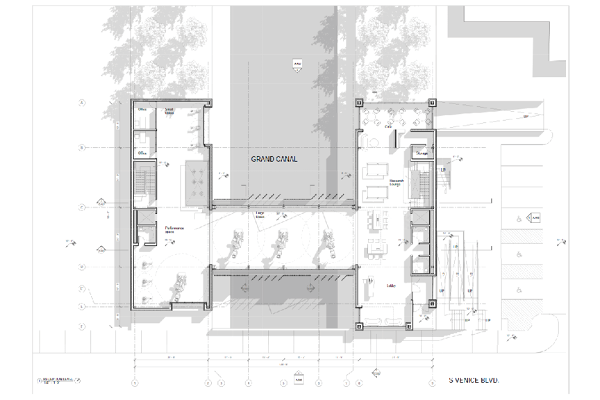
AI Robitics Lab of Venice, CA
Duc NguyenArchitectural Design Studio V with Associate Professor Genevieve BaudoinSummer 2021





















Duc NguyenArchitectural Design Studio V with Associate Professor Genevieve BaudoinSummer 2021




















